- Обща площ: 241,70 м²
- Стаи (без фоайе): 4
- Гаражни позиции: 2
- Бани + тоалетни: 2
- Минимална ширина и дължина на парцела: 26,94 х 26,14 м
- Наклон на покрива: 25 °

Модела uA32 е удобен, готов дизайн на къща за най-взискателните клиенти. Използваната му площ е 241 м2. Този проект се характеризира с интересна форма с четвъртит покрив и голяма покрита тераса. Този проект включва практичен гараж с две клетки и котелно помещение. Долу има голяма всекидневна с трапезария, която дава усещане за простор. Полуотворена кухня с килер, баня и допълнителна стая с гардероб. Първият етаж се състои от три удобни спални, включително основната с гардеробна, перално помещение и баня. uA32 е дизайн на семейна къща, който перфектно ще се впише както в градската среда, така и в природния пейзаж, например в гората.



- 1. Преддверие 6,28 м²
- 2. Съблекалня 5,47 м²
- 3. Коридор 8,17 м²
- 4. Баня 6,08 м²
- 5. Покро помещение 2,46 м²
- 6. Съблекалня 5,71 м²
- 7. Спалня 14,86 м²
- 8. Дневна + трапезария 55,49 м²
- 9. Кухня 21,84 м²
- 10. Килер 2,98 м²
- 11. Пом. 6,76 м²
- 12. Двоен гараж 47,05 м²
- Обща проекция на партер 193,15 м²

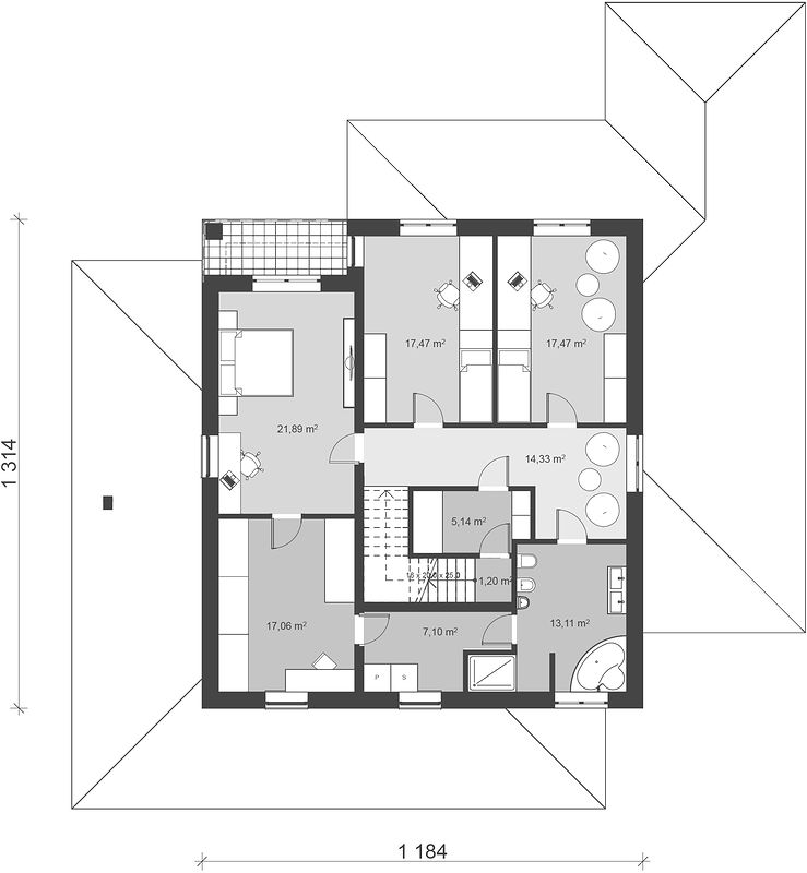
- 1. Коридор 14,33 м²
- 2. Баня 13,11 м²
- 3. Пом. икономически 7,10 м²
- 4. Съблекалня 17,06 м²
- 5. Спалня 21,89 м²
- 6. Спалня 17,47 м²
- 7. Спалня 17,47 м²
- 8. Гардеробна 5,14 м²
- 9. Коридор 1,20 м²
- Общ етажен план 114,77 м²
повече информация за модела може да отриете тук

