- Използваема площ: 207 м²
- Стаи (без салон): 5
- Гаражни позиции: 2
- Бани + тоалетни: 2
- Минимална ширина и дължина на парцела: 23,58 x 22,96 м
- Наклон на покрива: 35 °

Планът на къщата на Maja 3 е създаден по модела на добре познатия дизайн на Maja. За разлика от оригиналната версия, проектът има повече стаи, по-голяма площ и повече гаражни места.
Планът на къща Maja 3 е интересно предложение за хора с парцел със средна ширина. Къщата има типична форма, така че нейното изпълнение няма да изисква твърде много финансови средства. Интересно решение е декоративният еркер, включен от архитекта. Проектът принадлежи към категорията къщи с билото, насочено успоредно на пътя, което е много важно, когато планът за зониране го изисква. Къщата е създадена за свободно стоящи сгради. Проектът предлага гараж за две коли, преместен отпред. Това също е интересно предложение за хора, които търсят къща с покрив, който перфектно защитава сградата от неблагоприятни метеорологични условия.
Проектът Maja 3 е едноетажна къща с таван, което означава, че използваемата площ не е ограничена от размера на парцела. Сърцето на къщата е просторна дневна зона, която благоприятства прекарването на време заедно с любимите ви хора. Състои се между другото от функционална кухня, която ще сбъдне мечтата на всяка домакиня. Всекидневната разполага с атмосферна камина, която придава приятна топлина и придава на интериора приятна атмосфера. Дизайнът включва две удобни бани – едната е на приземния етаж, а другата на тавана. Къщата разполага с пет удобни спални, което я прави отличен избор за семейство от 5-7 души. Пространството може да се използва и като стая за гости или офис.
Непрекъснатостта между интериора на къщата и градината се осигурява от атрактивна тераса. Безспорно предимство на къщата е верандата, която добавя чар към формата и увеличава функционалността на къщата. Проектът е създаден за инвеститори, които планират да построят къща в тухлена технология. Формата му включва решения, отнасящи се до традиционния стил, благодарение на които той ще се впише идеално във всеки пейзаж.

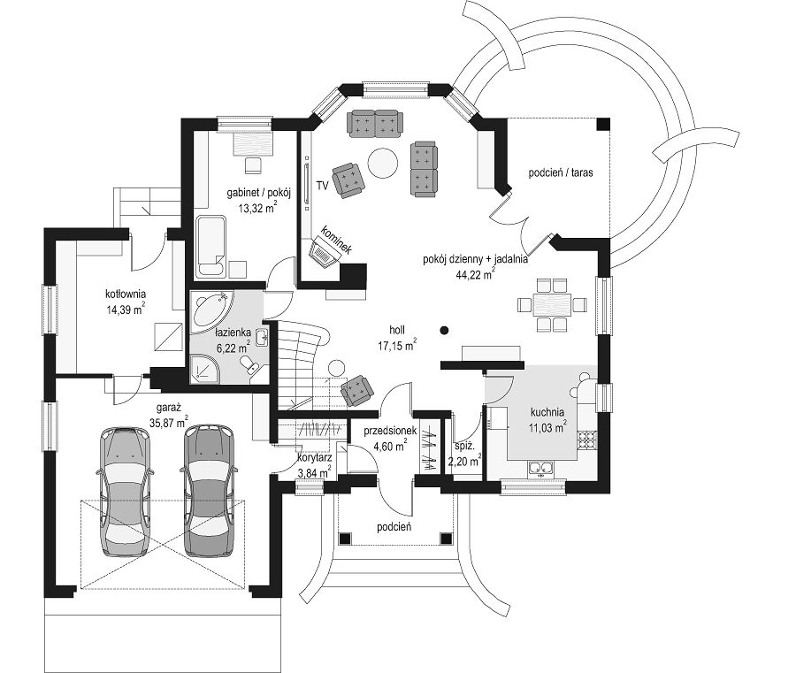
- Всекидневна + трапезария 44,22 м²
- Зала 17.15 м²
- Кухня 11.03 m²
- Склад 2,20 м²
- Вестибюл 4,60 м²
- Коридор 3.84 м²
- Спалня 13.32 м²
- Баня 6,22 м²
- Котелно помещение 14.39 м²
- Двоен гараж 35.87 м²
Обща проекция на приземния етаж 152.84 м²

- Стая 17,28 m² (25,40 m²)
- Стая 14.02 m² (21.03 m²)
- Баня 7.66 m² (14.42 m²)
- Зала 13.90 м²
- Спалня 17,86 m² (25,16 m²)
- Стая 16.80 м²
- Пом. икономически 13.22 m² (36.60 m²)
Общо хвърляне на таванско помещение 100,74 м²
повече информация за проекта може да намерите тук

