Къщата на Соренто Термо е вариант на популярния дизайн на Соренто. За разлика от оригиналната версия, дизайнът има по-малко стаи, по-малка площ. Планът на къщата на Соренто Термо е чудесно решение за хора със средно широк парцел земя. Къщата се характеризира с типична форма, която улеснява много по-късното подреждане на интериора. Остъкляването, осигурено в залива, ще придаде на интериора повече простор. Проектът принадлежи към категорията къщи с билото, разположено успоредно на пътя, което е много важно, когато планът за зониране го изисква. Предназначен е за инвеститори, които разполагат с парцел, който позволява изпълнението на проект на полуфабрикат. Структурата на сградата е покрита с двускатен покрив, което я прави евтино и просто решение. Проектът Sorrento Termo е едноетажна къща с таванско помещение, благодарение на което членовете на домакинството могат да се насладят на повече уединение.Дизайнът на къщата се характеризира с просторна дневна зона. Перфектно обмислените решения в кухнята предлагат много възможности за подреждане и улесняват ежедневната употреба. Интересен елемент със сигурност е камина, разположена в хола, която ще придаде на интериора уникална атмосфера. На двата етажа е осигурена напълно функционална баня, която значително ще улесни сутрешната подготовка за излизане. Четири просторни спални, включени в къщата, са оптимален вариант за семейство от 4-6 души. Пространството може да се използва и като стая за гости или офис. Терасата, проектирана от къщата, е идеалното място за отдих. Къщата е проектирана в тухлена технология. Външният му външен вид подобрява характеристиките на традиционния стил, което е идеално решение за хора, които ценят класиката и простотата.
- Използваема площ: 145,13 м²
- Стаи (без фоайе): 4
- Гаражни позиции: 0
- Бани + тоалетни: 2
- Минимална ширина и дължина на парцела: 27,3 х 20,23 м
- Наклон на покрива: 40 °

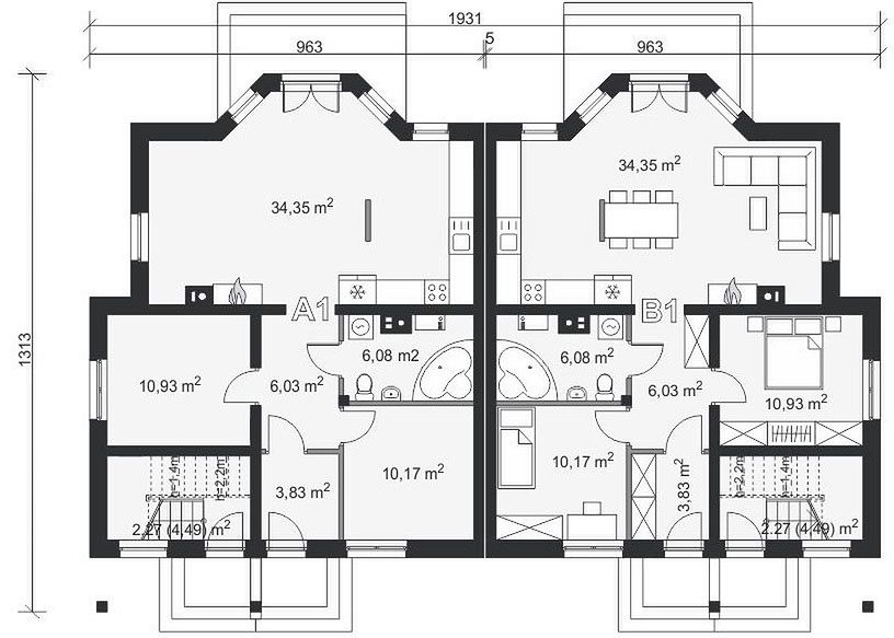
1. Преддверие 3,83 м²
2. Зала 6,03 м²
3. Дневна + кухня 34,35 м²
4. Баня 6,08 м²
5. Мир 10,17 м²
6. Стая 10,93 м²
Обща проекция на партер 71,39 м²
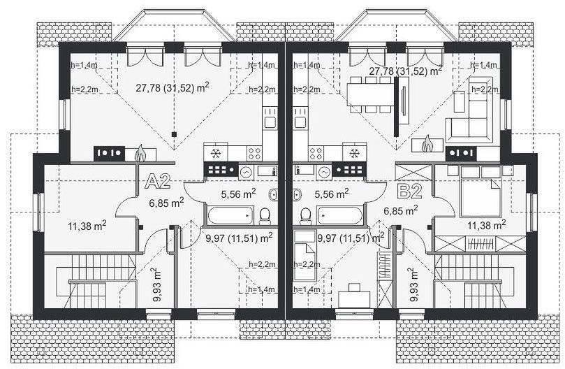
1. Стълби 2,27 m² (4,49 m²)
2. Стълби 9,93 м²
3. Зала 6,85 м²
4. Дневна + кухня 27,78 m² (31,52 m²)
5. Мир 11,38 м²
6. Стая 9,97 m² (11,51 m²)
7. Баня 5,56 м²
Общо хвърляне на таванско помещение 73,74 м²
повече инфорация за къщата тук



